$279,500 for Sale
5185 mackinaw, saginaw, MI 48603
| Beds 3 | Baths 3 | 1,480 Sqft | 0.28 Acres |
|
1 of 39 |
Property Description
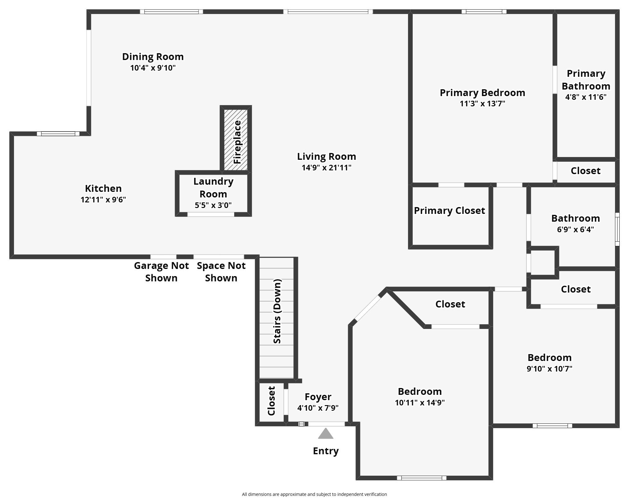
Welcome Home! With approximately 2,400 square feet of finished living space, this updated contemporary ranch offers excellent space and functionality throughout. The main level provides 1,480 square feet featuring vaulted ceilings, first-floor laundry, three bedrooms, and two full bathrooms. The finished lower level adds over 1,000 square feet of additional living space with egress, a half bathroom, and versatile areas well suited for a home theater, gym, office, or potential additional bedroom. Built in 1995, the home has seen extensive updates, including major 2025 improvements such as a new 97% high-efficiency furnace, new humidifier, new central air conditioner, all new kitchen appliances, a new kitchen sink and disposal, updated window treatments, new fencing, refreshed landscaping, and fresh paint throughout the common areas. With updated mechanicals and a practical layout, this home offers comfort, flexibility, and move-in readiness. Schedule your private showing today. USDA eligible.
General Information
City: saginaw twp
Post Office: saginaw
Schools: saginaw twp community school
County: Saginaw
Subdivision: mackinaw woods 4
Acres: 0.28
Lot Dim: 12119
Bedrooms:3
Bathrooms:3 (2 full, 1 half)
House Size: 1,480 sq.ft.
Acreage: 0.28 est.
Year Built: 1995
Property Type: Single Family
Style: 1 Story
Features & Room Sizes
Bedroom 1: 14x12
Bedroom 2 : 12x11
Bedroom 3: 14x11
Bedroom 4:
Family Room:
Greatroom:
Dining Room:
Kitchen: 14x11
Livingroom: 23x13
Pole Buildings:
Garage: 2
Garage Description: Attached Garage
Exterior: Vinyl Siding
Exterior Misc: Fenced Yard
Fireplaces: Yes
Fireplace Description: Gas Fireplace
Basement: Yes
Basement Description: Finished
Foundation : Basement
Appliances: Dishwasher,Disposal,Dryer,Humidifier,Microwave,Range/Oven,Refrigerator,Washer
Cooling: Central A/C
Heating: Forced Air
Fuel: Natural Gas
Waste: Public Sanitary
Watersource: Public Water
Tax, Fees & Legal
Est. Summer Taxes: $1,600
Est. Winter Taxes: $1,216
HOA fees:

Listing Courtesy of: Christopher Craves of Gold Pine Real Estate
Information provided by Bay County REALTOR
® Association. ©2026
Listing information provided courtesy of the Jackson Area Association of Realtors. IDX information is provided exclusively for consumers' personal, non-commercial use, and it may not be used for any purpose other than to identify prospective properties consumers may be interested in purchasing. The data is deemed reliable, but is not guaranteed accurate by the MLS.
This listing last updated: Tue, March 03, 2026 at 7:34:54 AM EST
BCRA Listing Data Last Updated on Wed, March 4 2026 at 4:32pm